{1}
##LOC[OK]##
{1}
##LOC[OK]##
##LOC[Cancel]##
{1}
##LOC[OK]##
##LOC[Cancel]##
×
×
切换地区
宿州
萧县
砀山
泗县
访客数量已超200多万!
设为首页
|
加入收藏
今天晴,6℃~19℃ 风力3-4级转<3级 明天晴,7℃~16℃, 风力<3级
广告
广告
招聘
求职
房产买卖
房产租赁
交友征婚
购物广场
生活服务
车辆市场
教育培训
招商合作
公告祝语
发布信息
编号:
5319678
地区:
埇桥区
标题:
环宇国际广场办公场地出租
类别:
招商合作 >>
门面出租/生意转让
点击:
88
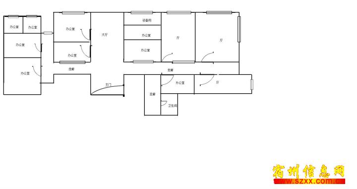
环宇国际广场办公场地出租
宿州埇桥人民路
宿州埇
,近银河一路。
,近银
532平方,适
532
合办公。7室5
合办公
厅。13000元/月。
联 系 人:
马先生
发布/刷新时间:
2025-10-31 17:28
离过期还有:
89天6时34分
15655799744
(联系时请首先说明您是从灵璧信息网看到本信息的)
提示
15655799744
经过真实性验证,属于宿州-联通号段。
宿州信息网安全提示:
本信息发布于宿州本地网络。
本信息被举报投诉次数:
0
我要举报此信息
点这里查看灵璧信息网总结的诈骗信息(2013)
点这里查看分类信息常见问题和解答
寻找兼职群,有的联系我
5元
虚县市区内有没有划玻璃的?
宿州有户外晾衣架出售吗?
夜市小吃摊位哪里租?
1元
宿州市区附件能看疑难杂症的中医
1元
有没有认识宿州华程快运物流的
1元
王君玉妇科门诊看病行吗?
宿州有没有企业数据紊乱,资金流断裂
2元
宿州哪里要cnc学徒
宿州大道旁边有土地出租或转让可以用作养鸡的吗?
3元
信息发布者快捷操作:
留言簿
(共有0条留言)
给信息发布者留言咨询
[
信息发布者不一定会回复您的留言咨询
]
您的称呼:
* 必填项,显示您的称呼
手机号码:
* 必填项,您的手机号码
,只有本信息的发布人才会看到
留言咨询内容最多允许100个字
提示:本信息发布者发布本信息的时候选择了开放留言簿。
灵璧信息网导航
招聘
求职
房产买卖
房产租赁
交友征婚
购物广场
生活服务
车辆市场
教育培训
招商合作
公告祝语
交友中心
网上店铺
宿州
知
道
民意调查
网站首页
天气预报
楼盘地图
火车时刻表
飞机时刻表
公交线路
宿州地图
常用电话
邮编区号
福利彩票
违章车辆
姓名测算
万年历
您还没有登录信息网
申请职位
请核对申请的职位,并点“确定申请”按钮。您的简历会被发送给该招聘单位。
招聘单位:
申请职位:
select
请选择申请职位
附加留言:
select
希望能到贵单位工作!
我很喜欢贵单位的工作氛围!
我对这个职位很感兴趣!
我完全胜任这个工作!
请多看一下我的简历哦!
我虽然经验不足,但是很愿意学习!
我虽然没有完全符合应聘要求,但是愿意努力赶上!
(不是必须填的)
本人手机号码:
如需修改手机号码或简历内容
点击这里
推荐信息(广告)
男勤杂工60岁以内
丁大毛冰糖葫芦厂房招送货勤杂工,年龄60岁以内,男。要求:会骑小型电动三轮车,送货范围都是在一公里之内, ......
送餐员j交社保/免费车0押金/
当天上岗+0押金入职+提供车子 认准站点直招(非中介) 全宿州市区域站点自选 月综合薪资5.6千-1,3千。不用早起 ......
宝瑞商贸招聘
广告标书员(5000-6000元/月) 5000-6000元/月;驾驶员(4000-5000元/月) 4000-5000元/月;文员(五险) 3500- ......
一摸方舟轴承招聘
车床普工(五险) 3000-6000元/月;淬火操作工(五险+提供食宿) 4500-8000元/月; 经济开发区轴承产业园三期 ......
高新诚聘客服,无责6000至12
招聘:网络客服等若干名 工作内容:每天维护客户的咨询并促进客户成交 工作时间:上午8:30-12:00 下午14:0 ......
招聘电梯维保工 维保员 学
因公司业务发展现对外招聘精英: 1、我公司主营电梯维护保养,因业务量增大,现需要招聘电梯维保工。 2、工作地 ......
保底6000办公室文员
见字问好~我们是一家在宿州成立10年较大的老牌直播公司,公司在国购大润发附近有5000平独栋办公楼,运营团队70 ......
电子厂 高工价21/小时 有班
坐班轻松简单 不要暑假工 有班车可车接车送 做六休一 包吃,包住 做满半个月可预支工资普工 6000-7000元/月; ......
招杂工60以内2500-2800
丁大毛冰糖葫芦厂房招勤杂工,年龄60岁以内,男女不限,要求:手脚麻利,干净利索,干活刷快,慢性格的人不能 ......
好又佳超市两淮店招聘龙登和
零食区,菜区,水果区理货员,打称员,电脑员有经验者优先,交五险
南方学校招聘
初中政治老师(带薪寒暑假+五险+包食宿) 4000-6000元/月;人事兼财务专员招聘启事(五险+双休) 工资面议; ......
恒鑫机电招聘
材料工程师(五险) 6000-8000元/月; 金海大道西侧南方欧景名城
广告
广告
版权所有 ©2006 - 2021 灵璧信息网 www.szxx.com.cn
-- 灵璧超人气门户网站
招聘
求职
房屋买卖
房屋租赁
购物广场
生活服务
门面商铺
车辆市场
交友征婚
教育培训
招商加盟
公告祝语
交友中心
灵璧知道
“灵璧信息网”是百度在灵璧超人气的搜索关键词!
查看宿州信息网的世界排名
官方微信:
宿州信息网宏洋服务
轻松加入微信
1.打开微信
2.点击底部菜单“发现”
3.选择“扫一扫”功能
4.对准左方二维码扫码
5.点击出现的绿色按钮“关注”
公众号:
宿州信息网宏洋服务
微信号:
szxxw001
常见问题回答
联系我们
广告业务:0557-3905363
安徽省宿州市宏洋网络信息服务有限公司
地址:宿州汴河路华夏世贸2620室
公司简介
《中华人民共和国工信部ICP备案》编号:
皖B2-20190089-2
皖公网安备 34130002000723号